Moretti Modular Contractor has been able to interpret the original architectural design with great rigour and respect, creating an extremely contemporary building clad entirely in Alucobond. The two-storey structure, which stands out for its lustrous, high-tech character, is softened by the rounded edges with which the main facade of the building is closed on both sides.
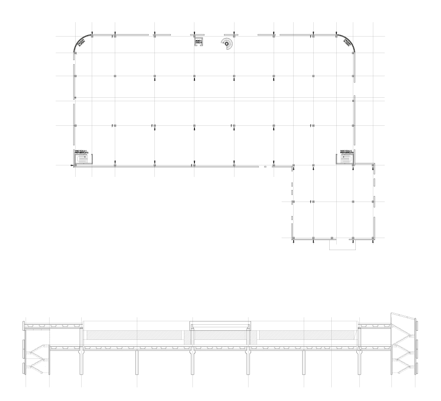
The project consists of the construction of a new production building on the site of the company’s historical headquarters. Next to the prefabricated structure is an automated steel warehouse for storing goods. The prefabricated structure houses the production department on the ground floor and the offices on the first floor, overlooking a large terrace within the perimeter formed by the factory buildings. The total extension of the project is 6,400 m2 of flat structures with inverted omega tiles, dallone type. In addition to the scenic round staircase at the entrance, two prefabricated stairwells are located at the ends of the factory building.
Project: arch. Luigi Meanti.
















