IT | EN
Zincol Ossidi, Cairo Montenotte, Savona, Italia - Moretti Modular Contractor

Zincol Ossidi,
Cairo Montenotte, Savona, Italy

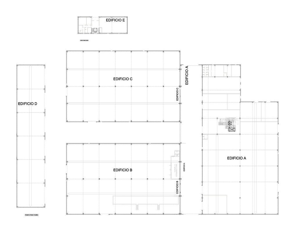
Moretti Modular Contractor handled the “turnkey” project for the construction of the new production facility of Zincol Ossidi SpA in Cairo Montenotte, on a vast area of over 40,000 m2 already owned by Ferrania Technologies. The new production hub consists of four industrial sheds covering an area of 17,000 m2 and a two-story building for offices and laboratories. Moretti Modular Contractor specifically managed the foundations, using the “jet grouting” technique for soil consolidation, by mixing the soil with cement products, creating columns of conglomerate soil, thus improving its mechanical properties.

The warehouses, built using reinforced concrete prefabrication technology and coloured grit infill panels, feature 24 to 27-metre span roofing and rafters. Photovoltaic panels have been placed on the largest of the four buildings to produce electricity; interior brightness is guaranteed by the presence of continuous or shed industrial skylights. Moretti also built the plinths for the production plants and two steel chimneys approximately 40 metres high, as well as the finishing and plant engineering of the office building. The project also saw the construction of the external yards and urbanisation works serving the production complex.

Project: arch. Giuseppe Sangalli

"Moretti is able to offer excellent value for money with a turnkey guarantee."

Giuseppe Sangalli, Architect

NON CANCELLARE

Giuseppe Sangalli

Architect

The ‘jet grouting’ technique was used for soil consolidation in the foundation phase.

Turnkey project in perfect harmony with the designer and client.

40 m

the height of the two chimneys with a steel base

27 m

the maximum span of the continuous tiles

Other projects